
关于亿博国际
公司简介
企业文化
资质荣誉
组织机构
产品中心
闸阀
Z41W法兰闸阀
Z45H 暗杆闸阀
Z41H-16C铸钢法兰闸阀
蝶阀
D373H涡轮对夹金属蝶阀
D71X不锈钢对夹式蝶阀
卫生级蝶阀
止回阀
H41H铸钢升降式法兰止回阀
H41W不锈钢升降式止回阀
水力控制阀
100X遥控浮球阀
SP45F数字锁定静态平衡阀
JM744X隔膜快开排泥阀
过滤器
GL41P不锈钢Y型过滤器
截止阀
电站焊接截止阀
J41B 氨用截止阀
减压阀
Y42X 减压阀
排气阀
SCAR复合式污水排气阀
CARX复合式排气阀(空气阀)
隔膜阀
G49J三通衬胶隔膜阀
工程案例
亿博国际新闻
新闻动态
技术资讯
亿博国际平台-首页-app下载
亿博国际彩票官网下载
合作代理
联系我们

产品描述:
JM744X隔膜快开排泥阀公司原理作用:
排泥阀又叫盖阀,亿博国际平台常用于城市水厂、污水处理厂的沉淀池底排放污泥用。排泥阀的适用介质为原生污水,介质的温度一般应小于50℃,其工作水深小于10米。排泥阀的动力源主要有:手动、气动、电动、液动;结构形式主要有:活塞、隔膜、角型。注意:排泥阀应安装在原管线的zui低点,并选用与排污水流成切线的排泥三通,还应考虑到排放过程中冲刷对附件基础的影响,排泥阀安装完毕后应及时关闭。
JM744X隔膜快开排泥阀采用双室隔膜传动机构替代活塞式,无运动磨损,寿命长。是一种由液压源或气动源作执行机构的角型截断类阀门,通常成排安装在沉淀池底部外侧壁,用以排除池底沉淀的泥砂和污物。亿博国际平台阀由泥龙强化橡胶隔膜将阀门分为两个腔室,接通液压或气动源,采用电动或手动二位四通换向阀控制,实现快速排泥。
JM744X隔膜快开排泥阀性能特点:
①采用双室隔膜传动替代活塞式阀门,无运动磨损,不会因杂质而产生漏水,对泥沙淤积不敏感,不需要润滑,无机械磨损产生;
②密封性能好,采用衬胶阀板,阀座采用斜度开口不易沉积泥沙杂质;
③驱动介质压低,无需另设加压泵或空压机,采用手动换向阀或电磁四通换向阀集中控制。
JM744X隔膜快开排泥阀技术参数:
公称通径 | DN40-DN450 | 公称压力 | 1.6Mpa | 适用温度 | 常温 | 适用介质 | 水 |
JM744X隔膜快开排泥阀部件材质:
阀体 | 铸铁/碳钢 | 阀板 | 铸铁/碳钢 | 阀杆 | 不锈钢 | 拼帽 | A3钢 | 隔膜片 | 丁腈橡胶 |
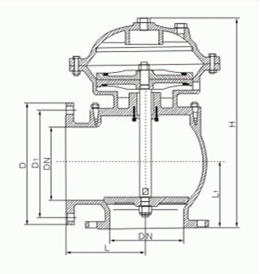
JM744X隔膜快开排泥阀外形尺寸:

公称通径 | 连接尺寸 | 进液接管(G) | ||||||
D | D1 | Φ | L | H1 | H | Z-Φ | ||
80 | 195 | 160 | 210 | 135 | 115 | 330 | 4-18 | 1/2" |
100 | 215 | 180 | 240 | 145 | 125 | 360 | 4-18 | 1/2" |
150 | 280 | 240 | 315 | 185 | 155 | 450 | 8-23 | 1/2" |
200 | 335 | 295 | 400 | 220 | 185 | 545 | 8-23 | 1/2" |
250 | 390 | 350 | 460 | 250 | 215 | 610 | 12-23 | 1/2" |
300 | 440 | 400 | 555 | 280 | 240 | 680 | 12-23 | 1/2" |